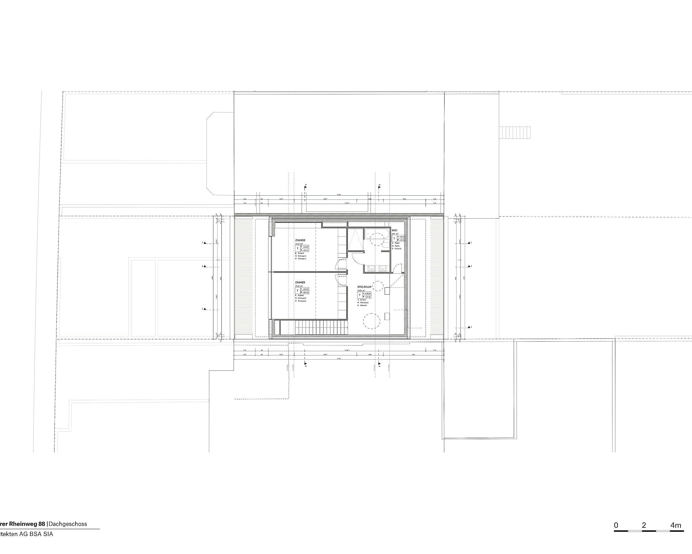
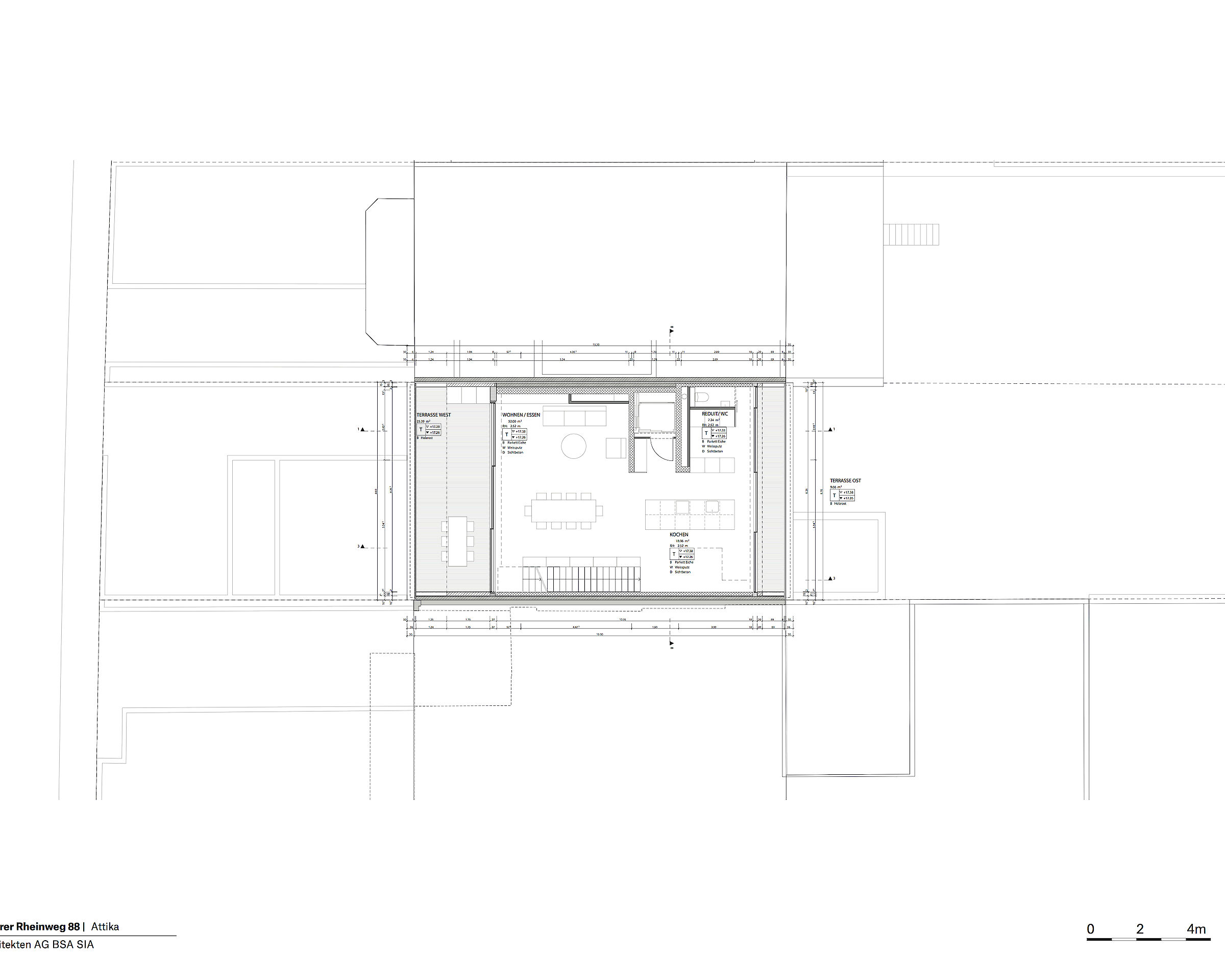
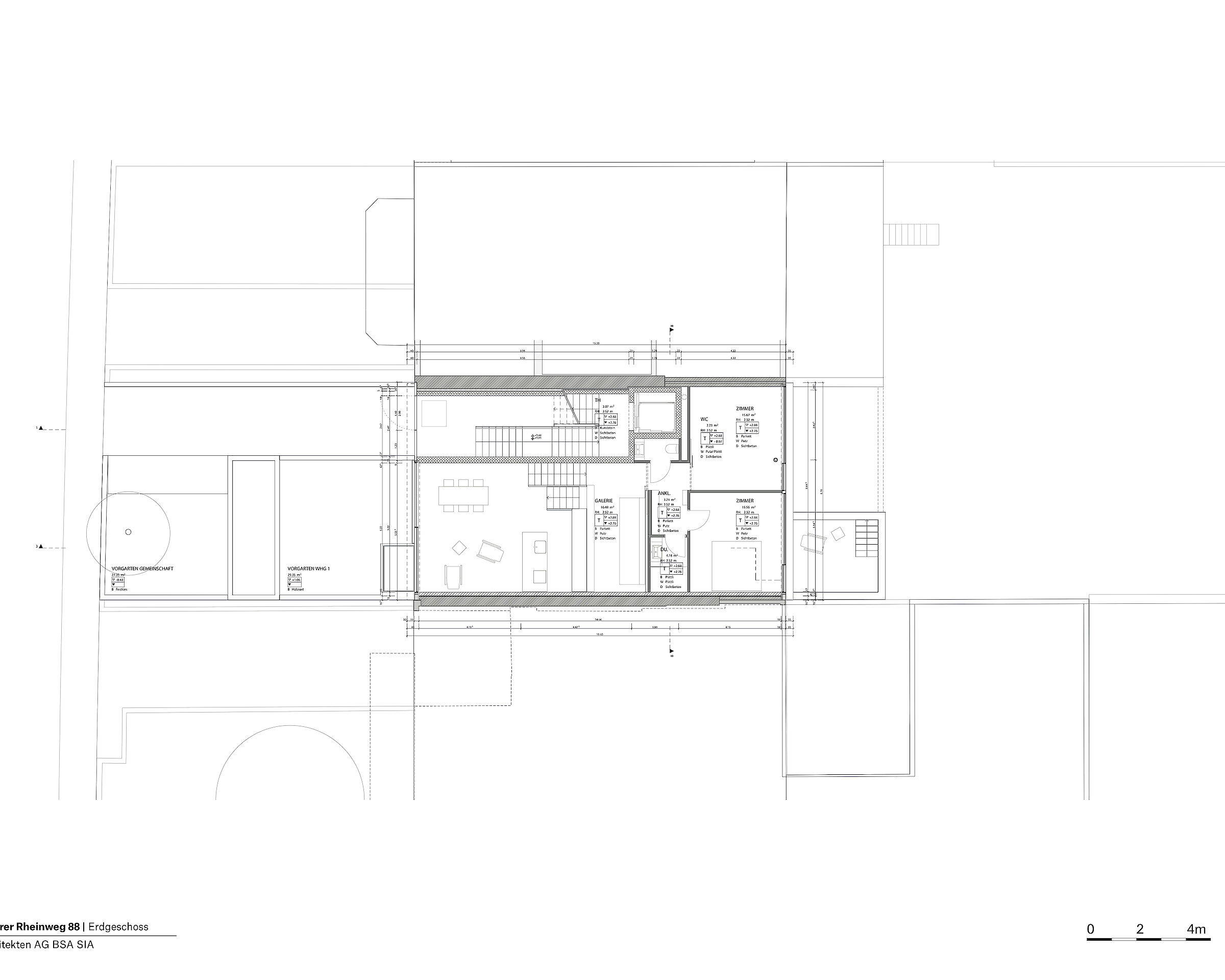
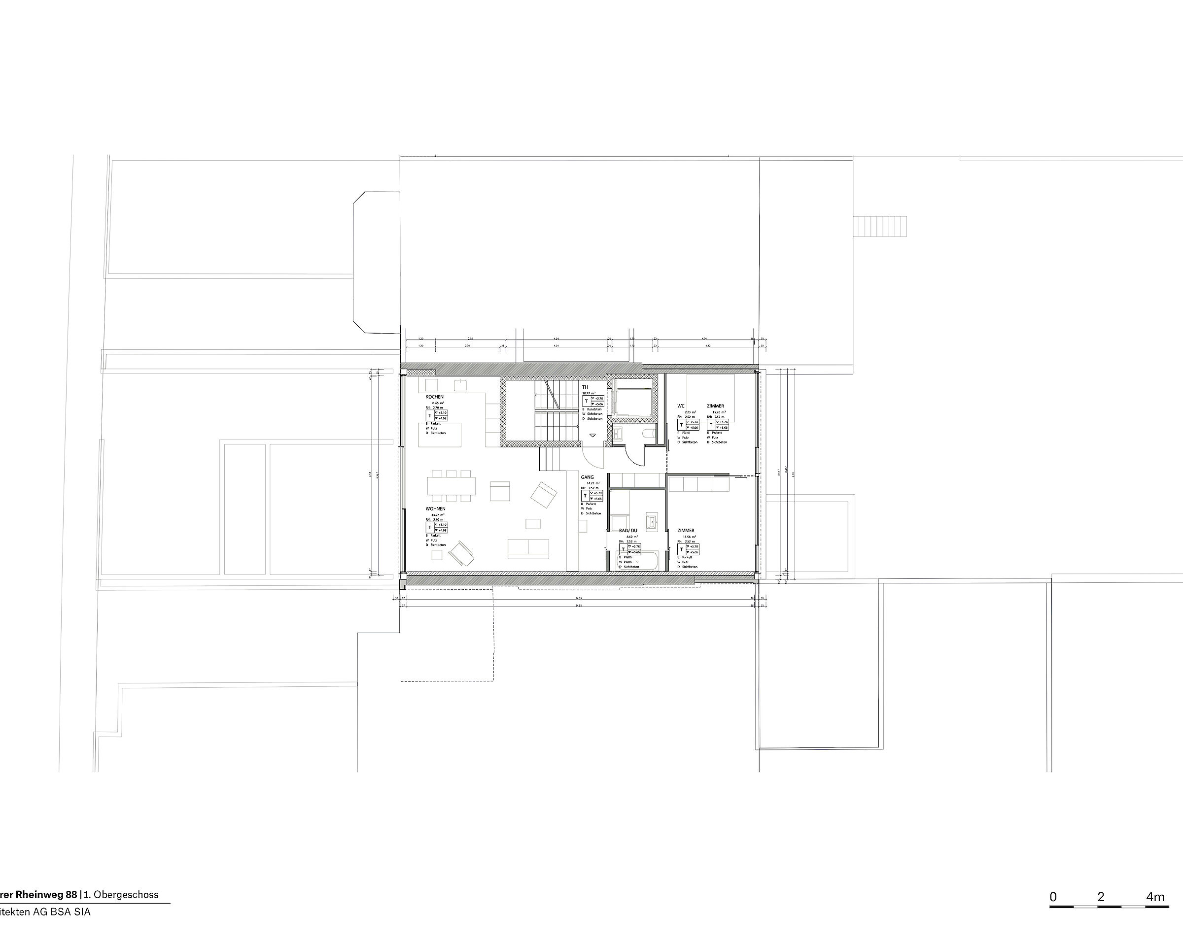
Der Neubau «Unterer Rheinweg 88» liegt direkt am Kleinbasler Rheinufer in einer rund neun Meter breiten Baulücke. Auf fünf Geschossen mit Attika erstrecken sich vier hochwertige Wohneinheiten an bester Lage.
Split-Levels gliedern die Wohnungen räumlich und ermöglichen Wohnbereiche unterschiedlicher Qualität: einen überhohen Wohn-Essbereich, der sich zum Rhein hin öffnet und einen privateren Schlafbereich zum Hof. Grosszügige, raumhohe Verglasungen auf beiden Fassadenfronten gewähren eine einzigartige Aussicht und beziehen die besonderen Aussenraumqualitäten des Ortes in die Wohnungen ein.
Auftraggeber:
Privat
Auftragsdauer:
2013 – 2017
Auftragsart:
Direktauftrag
Partner:
Staehelin, Gisin + Partner AG, Basel
Flächen:
Wohnen
Bilder:
© Ruedi Walti, Basel




















