Das Grundstück „Birsmatt Aesch“ befindet sich auf dem ehemaligen Areal der Firma Angenstein. Es liegt zwischen der Birs im Westen und dem Regionalbahnhof im Osten. Im Norden wird das Areal durch eine noch aktive Industrie und die Bahnhofstrasse begrenzt, die über die Birs hin bis zum Zentrum von Aesch ansteigt.
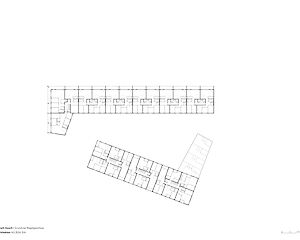
Zwei winkelartige Volumen, die an den Parzellengrenzen ausgerichtet sind und im Innern einen halbprivaten und geschützten Hof aufspannen, prägen die Überbauung. Die präzise Setzung der beiden eigenständigen Baukörper zu einer städtebaulich ganzheitlichen Figur schafft einen starken Gegenpol zum Industrieareal im Norden. Die volumetrische Ausformulierung erlaubt neben der Schaffung von Wohnraum in vielfältigen Typologien auch die Gestaltung von Aussenräumen mit hoher Aufenthaltsqualität.
Auftraggeber:
Losinger Marazzi AG, Basel
Auftragsdauer:
2011 – 2016
Auftragsart:
Direktauftrag
Flächen:
Areal 8'200m2
97 Wohnungen 8'000 m2
8 Ateliers 900 m2
Bilder:
© Ruedi Walti, Basel













