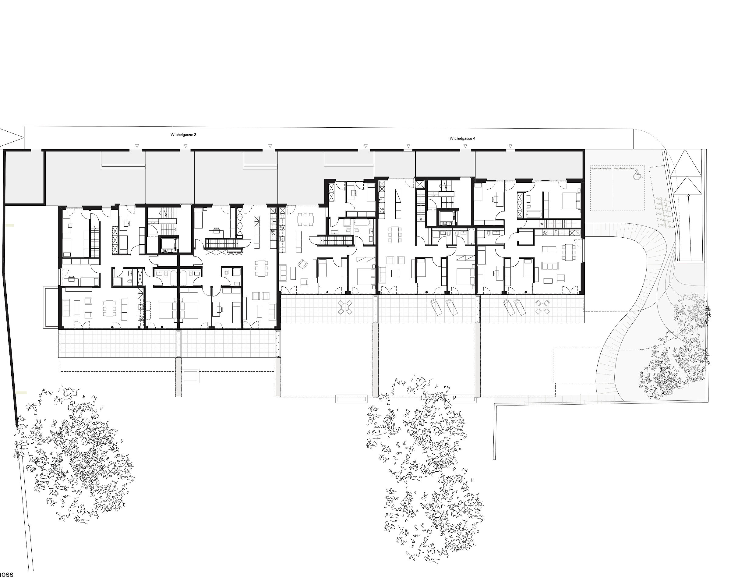
Die Parzelle in Visp entstand aus einer Abparzellierung der Tennisplätze und grenzt an eine unverbaubare Parkanlage.
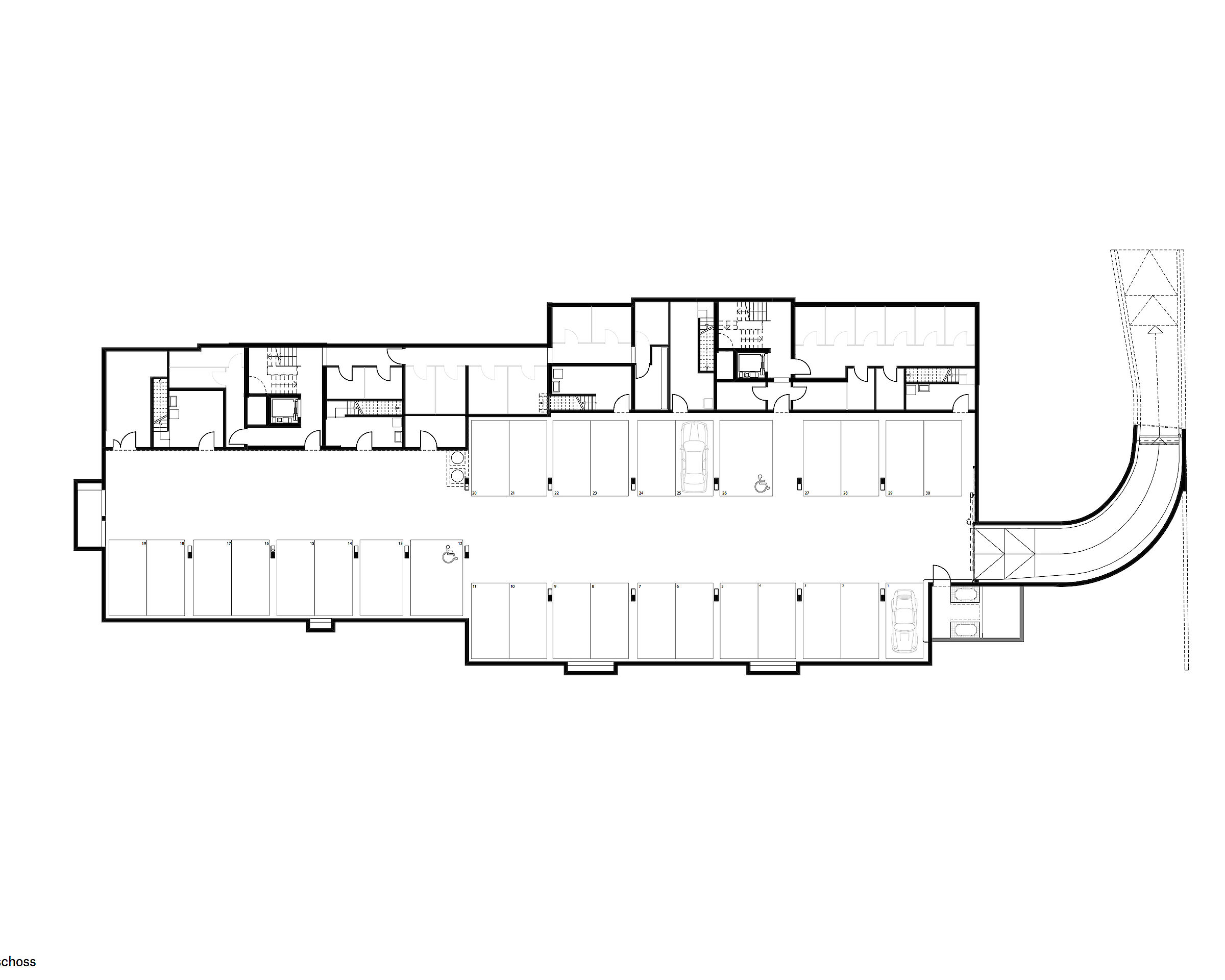
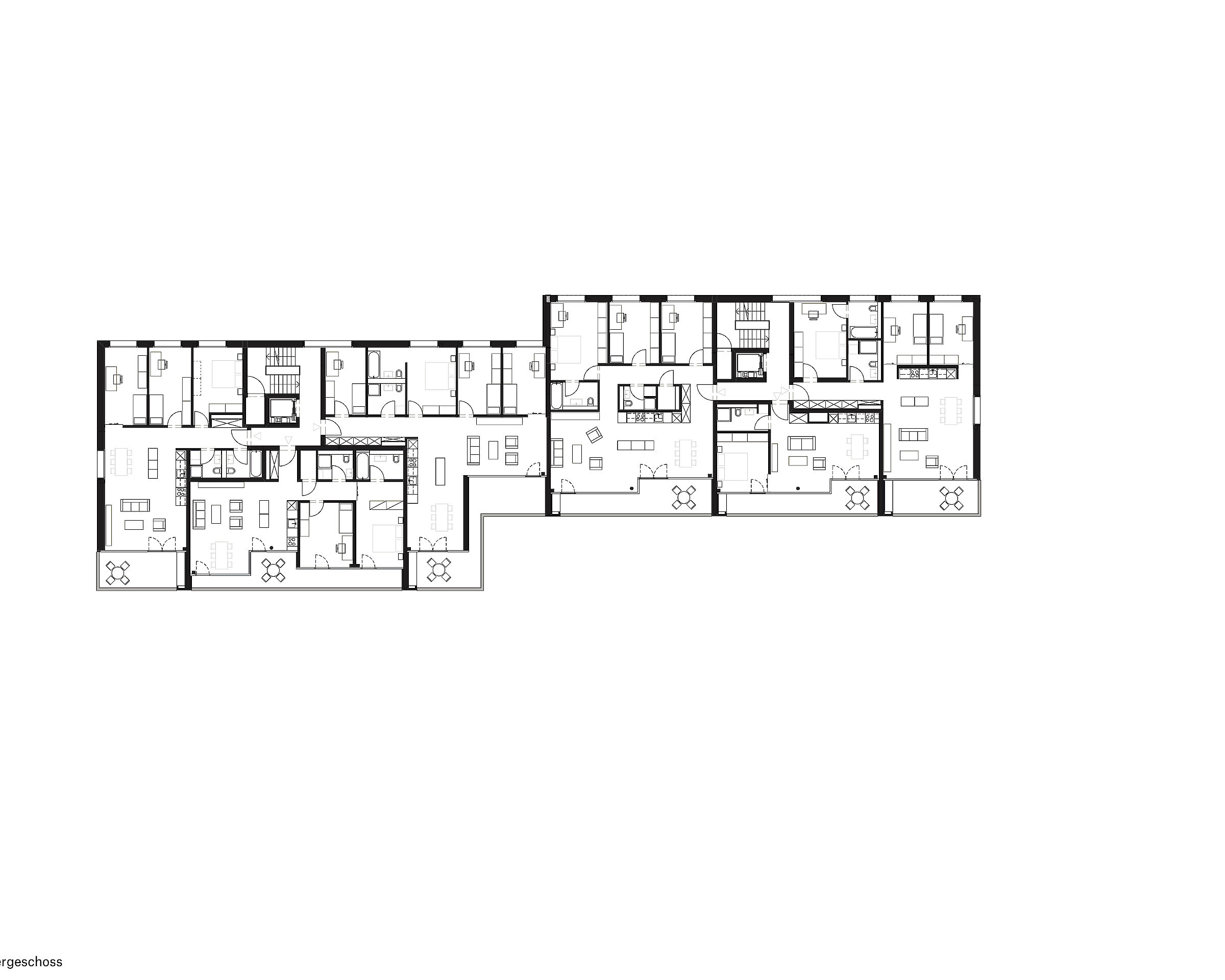
Durch die Setzung eines schlanken Zeilenbaus wird der Parkraum räumlich gefasst. Aufgrund seiner abgestuften Form passt sich das Gebäude gleichzeitig den Proportionen der Nachbarbebauungen an. Durch grossformatige Öffnungen und fliessende Raumabfolgen innerhalb der Erdgeschosswohnungen wird die Parklandschaft in den Baukörper einbezogen und durch eine Umzäunung im Osten begrenzt. Diese bildet gleichzeitig die Fortsetzung der bestehenden Grundstücksmauer entlang des Gebreiteweges. Es entsteht ein grosszügiger Erdgeschossbereich mit fünf Wohneinheiten, welche die Wohnqualität eines urbanen Einfamilienhauses aufweisen. Jede Einheit wird über einen eigenen Zugangshof erschlossen, westseitig öffnet sich der private Aussenbereich zum öffentlichen Park. Grosszügige und gedeckte Balkone werden in das Gebäudevolumen integriert und bilden eine räumliche Erweiterung der Wohn- und Essbereiche.
Auftraggeber:
Pensionskasse der Lonza AG, Visp
Auftragsdauer:
2012 - 2014
Auftragsart:
Direktauftrag
Partner:
amoba baumanagement gmbh, Brig
Flächen:
Areal 2'194 m2
26 Wohnungen 2'700 m2
Bilder:
© Ruedi Walti, Basel














