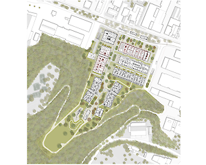
Charakteristisch für den Planungsperimeter ist der geschichtliche Hintergrund als ehemalige Ziegelei, sowie die Lage innerhalb des Gewerbequartiers in Allschwil, welche ab dem Beginn des 20. Jahrhunderts entstanden ist. Prägnant ist dabei vor allem der Übergang von Landschaftsraum in Form einer bewaldeten Böschung zum belebten Stadtraum des Gewerbegebietes. Auf dem Areal sollen Wohnformen für eine breite Nutzerklientel entstehen, welche unterschiedliche Wohnwelten mit verschiedenen Stimmungen / Atmosphären schaffen. Im Zentrum der Konzeption steht die Vorstellung eines zukunftsorientierten lebendigen Quartiers, welches aufzeigen soll, wie Gesellschaft, Kultur, Klima und Lebensalltag den öffentlichen und privaten Raum neu definieren können.
Der übergeordnete Entwurfsgedanke besteht in der Formulierung von «stadträumlichen Schichten», welche die unterschiedlichen Atmosphären berücksichtigen und durch Einbindung des Bestandes ein strukturelles Gefüge erschaffen. Der Ersatz neuer Gebäudevolumen folgt primär der ursprünglichen zeilenförmigen Bebauungsstruktur der ehemaligen Ziegelei. Die differenzierte Anordnung von Nord-Süd orientierten Fassadenebenen unterschiedlicher Höhenstaffelung schafft in der perspektivischen Wahrnehmung eine städtebauliche Schichtung und Orientierung bzw. Adressierung in die Tiefe des Planungsperimeters.
Im Kontext mit dem Bestandsbauten entsteht ein ortsbauliches Gefüge, dass die differenzierte Anordnung eines Nutzungskomplexes aus Arbeiten Wohnen, Werkgassen bzw. Ateliergassen erlaubt. Ein Grünraumkorridor schafft eine starke räumliche Verbindung bzw. öffentliche Zugänglichkeit zwischen Binningerstrasse und dem prägnanten Landschaftsraum.
Um die Identität des Ortes zu wahren und im Sinne einer nachhaltigen Betrachtung, werden zwei markante Bestandsgebäude erhalten: Diese sollen im entsprechend des RE-Use Gedankens mit den Abbruchmaterialien vor Ort saniert in den neuen ortsbaulichen Kontext eingebunden werden. Die „Halle 52“ mit ihrer direkten Adressierung entlang der Binningerstrasse bildet dabei den Auftakt in das neue Quartier.
AUFTRAGGEBER:
Bricks AG, Basel
AUFTRAGSDAUER:
2022
AUFTRAGSART:
Studienauftrag
FLÄCHEN:
GF 70`000m2
VISUALISIERUNG:
© Indievisual AG, Zürich





