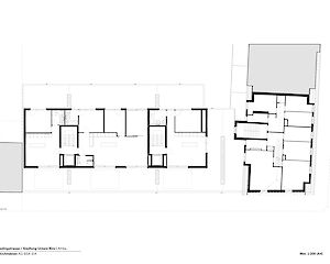
Der Ersatzneubau an der Redingstrasse 43 in Basel umfasst 18 genossenschaftliche Wohnungen und eine Einstellhalle mit ca. 50 Einstellplätzen. Hofseitig ist ein grosszügiger Garten als Spiel- und Erholungsfläche geplant.
Die Wohnungen mit ihren wandelbaren Grundrissen bestechen durch ein hohes Mass an Flexibilität. Dieses ermöglicht es die Wohnung den jeweiligen Lebensumständen anzupassen. Je nach Bedarf lässt sich die Wohnungsfläche als 3.5-Zimmer- oder als 4.5-Zimmer-Wohnung gestalten. Die Grundrisse wachsen mit und passen sich den individuellen Bedürfnissen der Bewohner an.
Auftraggeber:
Eisenbahner-Baugenossenschaft beider Basel (EBG), Basel
Auftragsdauer:
2014 - 2018
Auftragsart:
Direktauftrag
Partner:
Wenger Partner AG, Basel
Flächen:
18 Wohnungen 2'300 m2 BGF
50 Einstellplätze
Bilder:
© Ruedi Walti, Basel
Derek Li Wan Po, Basel





























